Jacob van Lennepkade 187 1
**This property is sold by a certified MVA expat broker**For English translation see below Dutch text**
Jacob van Lennepkade 187 I – wonen aan het water in het hart van Amsterdam Oud-West.
Aan het rustige Jacob van Lennepkanaal, in een van de meest gewilde delen van Amsterdam Oud-West, ligt dit appartement van 47m2 met een eigen terras van 6 m2 op het zuiden, gelegen op de eerste verdieping van een karakteristiek pand. Een unieke kans voor wie wil wonen op een toplocatie aan het water én deze voormalige huurwoning naar eigen wens wil indelen en afwerken.
Pluspunt: De woning is gelegen op eigen grond.
Omgeving
De Jacob van Lennepkade ligt op een charmante locatie in Oud-West, een buurt die de charme van de oude stad combineert met moderne gemakken. Alles ligt binnen handbereik: gezellige cafés, restaurants, speciaalzaken en de populaire Foodhallen.
Voor ontspanning is het Vondelpark om de hoek — ideaal voor een ochtendwandeling, joggen of om even tot rust te komen in het groen.
De bereikbaarheid is uitstekend dankzij diverse tram- en busverbindingen in de directe omgeving, terwijl ook de ringweg A10 snel te bereiken is.
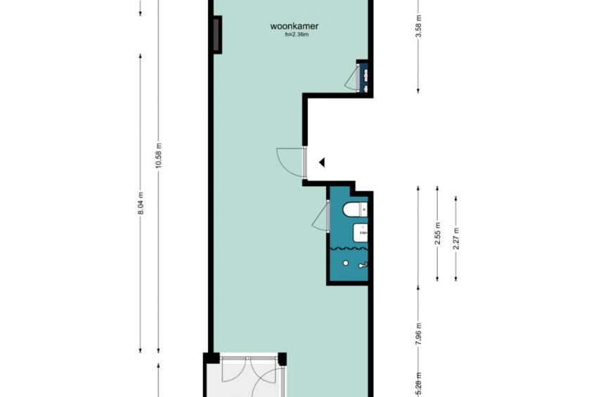
Indeling
Via het gezamenlijke trappenhuis bereik je de entree op de eerste verdieping. Aan de voorzijde bevindt zich een lichte, ruimte met een Frans balkon en een prachtig uitzicht over het water – een heerlijke plek om ’s ochtends de dag te beginnen of in de avond te genieten van de ondergaande zon.
Deze ruimte biedt bovendien de mogelijkheid om een aparte slaapkamer te creëren, zodat je het appartement flexibel kunt indelen naar eigen behoefte.
In het midden van de woning ligt de badkamer, voorzien van een douche, toilet en fonteintje.
Aan de achterzijde vind je de simpele keuken, met aansluitend voldoende ruimte om een gezellige woonkamer te realiseren. Vanuit hier heb je toegang tot het heerlijke terras op het zuiden, waar je kunt ontspannen met een leuk uitzicht over de groene binnentuinen en typische Amsterdamse achtergevels.
Kortom: een heerlijk appartement op een toplocatie in Amsterdam, met volop mogelijkheden om er je eigen droomplek van te maken!
Parkeren
Parkeren kan voor de deur, parkeervergunning via vergunningssysteem; er zijn ook ondergrondse parkeergarages in de omgeving.
VVE
Er is sprake van een actieve, kleinschalige V.v.E. bestaande uit 4 appartementen. De leden laten zich ondersteunen door een professionele beheerder. De maandelijkse servicekosten voor de woning zijn momenteel ca. € 155,12. Dit is inclusief o.a. de opstalverzekering en de reservering voor het onderhoud.
Verkoop en overdracht
Verkoopvoorwaarden
Clausules:
De "as is where is" clausule wordt opgenomen in de koopovereenkomst van deze woning.
Dit houdt kort gezegd in dat u de woning accepteert zoals hij er nu bijstaat en er geen garantie's worden gegeven over staat van onderhoud van de woning door de verkoper.
Uiteraard krijgt u de gelegenheid om de woning bouwtechnisch te laten keuren, indien gewenst.
Oplevering:
In overleg, kan per direct.
Koopakte en notaris:
Een mondelinge overeenstemming tussen de particuliere verkoper en de particuliere koper is niet rechtsgeldig. Met andere woorden: er is geen koop. Er is pas sprake van een rechtsgeldige koopovereenkomst als de particuliere verkoper en de particuliere koper de koopovereenkomst hebben ondertekend. Koper dient binnen twee werkdagen na het bereiken van de mondelinge overeenstemming inzake de koopsom en de voorwaarden, een notaris aan te wijzen binnen een straal van 15 km van het ter verkoop aangeboden object, opdat uiterlijk 1 week na deze mondelinge overeenstemming de koopakte ondertekend kan worden. Indien koper binnen deze periode geen notaris heeft aangewezen, heeft verkoper het recht deze aan te wijzen.
***************************************************************************************************
Jacob van Lennepkade 187 I – waterfront living in the heart of Amsterdam Oud-West.
Located on the quiet Jacob van Lennep Canal, in one of the most charming parts of Amsterdam Oud-West, is this 47m² apartment with a private 6m² south-facing terrace, situated on the first floor of a characteristic building. A unique opportunity for those who want to live in a prime waterfront location and design and finish this formal rental home to their own taste.
Advantage: The apartment is freehold.
Neighborhood
Jacob van Lennepkade enjoys an idyllic location in Oud-West, a neighborhood that combines the charm of the old city with modern conveniences. Everything is within easy reach: cozy cafés, restaurants, specialty shops, and the popular Foodhallen.
For relaxation, Vondelpark is just around the corner—ideal for a morning stroll, a jog, or simply unwinding in the greenery.
Accessibility is excellent thanks to various tram and bus connections in the immediate vicinity, while the A10 ring road is also easily accessible.
Layout
The shared staircase leads to the entrance on the first floor. At the front of the apartment is a bright, airy space with a French balcony and stunning water views – a wonderful place to start the day in the morning or enjoy the sunset in the evening.
This space also offers the possibility of creating a separate bedroom, allowing you to flexibly arrange the apartment to your own needs.
The bathroom, equipped with a shower, toilet, and sink, is located in the center of the apartment.
At the rear, you'll find the simple kitchen, with ample space to create a cozy living room. From here, you have access to the lovely south-facing terrace, where you can relax with a pleasant view of the green courtyards and typical Amsterdam back facades.
In short: a wonderful apartment in a prime location in Amsterdam, with plenty of opportunities to make it your own dream home!
Parking
Parking is available in front of the apartment, with a permit required through the permit system; underground parking garages are also available nearby.
Homeowners' Association (VvE)
This is an active, small-scale homeowners' association (VvE) consisting of four apartments. The members are supported by a professional manager. The monthly service charges for the property are currently approximately €155.12. This includes, among other things, building insurance and a reserve for maintenance.
Sale and Transfer
Conditions of Sale
Clauses:
The "as is where is" clause will be included in the purchase agreement for this property.
In short, this means that you accept the property as it currently stands, and no guarantees are given by the seller regarding the state of maintenance of the property.
You will, of course, have the opportunity to have the property inspected, if desired.
Delivery:
Negotiable, available immediately.
Purchase agreement and notary:
A verbal agreement between the private seller and the private buyer is not legally valid. In other words, there is no sale. A legally valid purchase agreement only exists once the private seller and the private buyer have signed the purchase agreement. Within two business days of reaching verbal agreement on the purchase price and the terms and conditions, the buyer must appoint a notary within a 15 km radius of the property for sale, so that the purchase agreement can be signed no later than one week after this verbal agreement. If the buyer has not appointed a notary within this period, the seller has the right to appoint one.