Sloterweg 1277

Sloterweg 1277

€ 1 000 000
Onder bod
Sloterweg 1277
1066 CK AMSTERDAM
Nederland
Type: 
vrijstaande woning
Kamers: 
5
Vloeroppervlakte: 
131 m²
Perceeloppervlakte: 
475 m²
Bouwjaar: 
1924

**This property is sold by a certified MVA expat broker**For English translation see below Dutch text**

In het sfeervolle en karakteristieke dorp Oud-Sloten bieden wij deze volledig gerenoveerde vrijstaande woning aan, waar authentieke charme en modern wooncomfort op harmonieuze wijze samenkomen. Bij de renovatie is met oog voor detail gewerkt, waarbij karakteristieke elementen en originele details zorgvuldig zijn behouden, wat de woning een unieke en warme uitstraling geeft.

Deze fraaie gezinswoning beschikt over een ruime voortuin en een zonnige, op het zuiden gelegen achtertuin. Binnen vindt u een royale living met een aparte eetruimte en een open keuken met fraai uitzicht op de achtertuin. Daarnaast zijn er drie goed bemeten slaapkamers en een riante vliering aanwezig. Het parkeren van meerdere auto’s is mogelijk op eigen terrein en de erfpacht is bovendien eeuwigdurend afgekocht.

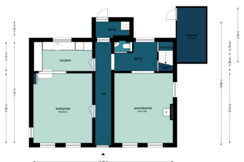
Indeling
Via de fraaie voortuin bereikt u de entree van de woning. De hal, met leuke authentieke details, geeft toegang tot de royale living. Wat direct opvalt zijn de karakteristieke elementen, zoals de houten balken die door de gehele woning zijn doorgevoerd, de ramen met originele luiken aan de voorzijde en de sfeervolle houtkachel. De living is afgewerkt met een mooie parketvloer.

Vanuit de hal bereikt u de woonkeuken met aangrenzende eetkamer. De keuken biedt uitzicht op de zonnige achtertuin en is uitgevoerd met houten kasten en lades, een zwart granieten werkblad en diverse inbouwapparatuur, waaronder een combi-oven, vaatwasser, Quooker (voor direct kokend en bruisend water), koel-vriescombinatie en een grote inductiekookplaat met wokbrander (gas) en afzuigkap. Tevens bevindt zich hier de meterkast, die keurig is weggewerkt in een praktische inbouwkast. Aansluitend bevindt zich de ruime eetkamer, gelegen aan de voorzijde van de woning, voorzien van een tweede houtkachel die zorgt voor extra sfeer en warmte. De keuken en eetkamer zijn voorzien van een stijlvolle grijze gietvloer en de gehele begane grond beschikt over vloerverwarming.

Tevens is er vanuit de hal toegang tot een apart toilet met fonteintje en een praktische ruimte daarachter waar de wasmachine en droger zijn opgesteld. Via een aparte deur bereikt u de trap naar de eerste verdieping; onder de trap bevindt zich bovendien een handige trapkast.

Eerste verdieping
Via de vaste houten trap bereikt u de eerste verdieping. Hier valt direct de ruimte en het licht op, dankzij de grote ramen en de praktische indeling. Op deze verdieping bevindt zich tevens een ruime inloopkast, die voor diverse doeleinden kan worden gebruikt.

Via de royale overloop heeft u toegang tot de badkamer, die van alle gemakken is voorzien. De badkamer beschikt over een ligbad, een inloopdouche met zowel een regen- als handdouche, een zwevend toilet en een wastafel met een stijlvol houten wandmeubel. Daarnaast zorgt een raam voor prettig daglicht en natuurlijke ventilatie.

De eerste slaapkamer is verrassend ruim en licht en beschikt, net als de rest van de woning, over karakteristieke details zoals de houten balken, alsmede een hoog plafond tot in de nok van het zadeldak. De tweede slaapkamer, aan de voorzijde gelegen, betreft de master bedroom en is niet alleen zeer ruim, maar ook praktisch ingericht dankzij de aanwezige inbouwkast.

De royale overloop loopt over de gehele verdieping en biedt zelfs nog ruimte voor bijvoorbeeld een werkplek of bureau. De derde slaapkamer beschikt eveneens over een vaste inbouwkast en geniet van een prettige lichtinval. Over de gehele verdieping ligt een keurige laminaatvloer.

Vliering
De vliering strekt zich uit over de volledige lengte van de woning en vormt een verrassend ruime en praktische opbergplek. Tevens is op deze verdieping de cv-ketel geplaatst, waardoor deze functioneel is weggewerkt.

Tuin
De woning beschikt over een riante voor-, zij- en achtertuin. De zonnige achtertuin is gelegen op het zuiden en biedt een fijne combinatie van een terras en een groen gazon met een ingebouwde trampoline. Daarnaast vindt u hier zowel een stenen als een houten schuur, ideaal voor extra bergruimte.
Aan de voorzijde zorgt de ruime voortuin, fraai aangelegd met leilindes en een stijlvol hekwerk, voor een verzorgde en uitnodigende uitstraling van de woning.

Parkeren
Deze woning biedt uitstekende parkeermogelijkheden. Op eigen terrein is er ruimte voor het parkeren van meerdere auto’s. Daarnaast is er in de omgeving voldoende parkeergelegenheid beschikbaar middels betaald parkeren. Bewoners krijgen een vergunning voor het doorrijverbod op de Sloterweg.

Erfpacht
De woning is gelegen op erfpachtgrond, waarbij de erfpacht momenteel is afgekocht tot en met 31 augustus 2040 en daarna eeuwigdurend is afgekocht, waardoor na afloop van het huidige tijdvak geen canonverplichting meer van toepassing is.

Monument
Vanwege de historische waarde is het pand aangewezen als gemeentelijk monument. Daarnaast heeft het dorp sinds 18 oktober 2017 de status van gemeentelijk beschermd dorpsgezicht, wat bijdraagt aan het karakter en de unieke uitstraling van de omgeving.

Bijzonderheden
- Bijzonder vrijstaand familiehuis op een toplocatie
- Volledig gemoderniseerd en van alle gemakken voorzien, met behoud van karakteristieke details
- Zonnige tuin op het zuiden
- Parkeren van meerdere auto's op eigen terrein
- Erfpacht eeuwigdurend afgekocht
- Entree van de woning zowel via de voorkant als achterkant
- De woning is volledig glad gestuukt.
- Energielabel B

Omgeving
Wonen aan de Sloterweg 1277 betekent genieten van het beste van twee werelden: de rust en charme van het dorpse Oud-Sloten én de nabijheid van de dynamiek van Amsterdam. Deze karakteristieke, groene en waterrijke omgeving staat bekend om haar historische uitstraling, met onder andere de authentieke dorpskern, gezellige straatjes en monumentale panden. Oud-Sloten is een van de oudste delen van Amsterdam en ademt een gemoedelijke sfeer, met diverse lokale voorzieningen zoals een buurtsupermarkt, basisschool en horeca binnen handbereik.

Daarnaast ligt ook Het Nieuwe Meer op korte afstand: een geliefde plek voor watersporters, wandelaars en recreanten. Rondom dit uitgestrekte meer vindt u diverse groene zones, strandjes en rustige plekken om te ontspannen aan het water. Het gebied vormt een prachtige aanvulling op de natuurlijke omgeving en biedt volop mogelijkheden om te genieten van rust en ruimte, terwijl de stad altijd dichtbij blijft.

Tegelijkertijd is de bereikbaarheid uitstekend. Met de auto bent u snel op de uitvalswegen richting de A4, A5 en A9, en ook het openbaar vervoer brengt u vlot naar het centrum van Amsterdam, Schiphol en omliggende steden. Hierdoor is de locatie zeer geschikt voor zowel gezinnen als forenzen.

Verkoop en overdracht

Clausule
Ouderdomsclausule

Roerende goederen
Volgens lijst van zaken

Oplevering
In overleg

Koopakte en notaris
Een mondelinge overeenstemming tussen de particuliere verkoper en de particuliere koper is niet rechtsgeldig. Met andere woorden: er is geen koop. Er is pas sprake van een rechtsgeldige koopovereenkomst als de particuliere verkoper en de particuliere koper de koopovereenkomst hebben ondertekend. Koper dient binnen twee werkdagen na het bereiken van de mondelinge overeenstemming inzake de koopsom en de voorwaarden, een notaris aan te wijzen binnen een straal van 15 km van het ter verkoop aangeboden object, opdat uiterlijk 1 week na deze mondelinge overeenstemming de koopakte ondertekend kan worden. Indien koper binnen deze periode geen notaris heeft aangewezen, heeft verkoper het recht deze aan te wijzen.

***************************************************************************************************
In the charming and characteristic village of Oud-Sloten, we offer this fully renovated detached house, where authentic charm and modern living comfort come together harmoniously. The renovation was carried out with an eye for detail, carefully preserving characteristic elements and original features, giving the home a unique and warm appearance.

This beautiful family home features a spacious front garden and a sunny, south-facing back garden. Inside, you will find a generous living room with a separate dining area and an open kitchen with a beautiful view of the back garden. Additionally, there are three well-sized bedrooms and a spacious attic. Parking for multiple cars is possible on private property, and the ground lease has been bought out in perpetuity.

Layout
You reach the entrance of the home via the beautiful front garden. The hall, featuring charming authentic details, provides access to the spacious living room. What immediately stands out are the characteristic elements, such as the wooden beams running throughout the entire house, the windows with original shutters at the front, and the atmospheric wood-burning stove. The living room is finished with a beautiful parquet floor.

From the hall, you reach the eat-in kitchen with an adjoining dining room. The kitchen offers a view of the sunny backyard and is equipped with wooden cabinets and drawers, a black granite countertop, and various built-in appliances, including a combination oven, dishwasher, Quooker (for instant boiling and sparkling water), fridge-freezer, and a large induction hob with a wok burner (gas) and extractor hood. The meter cupboard is also located here, neatly concealed in a practical built-in cupboard. Adjoining this is the spacious dining room, situated at the front of the house, equipped with a second wood-burning stove that provides extra atmosphere and warmth. The kitchen and dining room feature a stylish grey cast floor, and the entire ground floor has underfloor heating.

From the hallway, there is also access to a separate toilet with a washbasin and a practical space behind it where the washing machine and dryer are located. A separate door leads to the stairs to the first floor; furthermore, there is a convenient storage cupboard under the stairs.

First Floor
You reach the first floor via the fixed wooden staircase. Here, the spaciousness and light immediately stand out, thanks to the large windows and practical layout. This floor also features a spacious walk-in closet that can be used for various purposes.

The generous landing provides access to the bathroom, which is fully equipped. The bathroom features a bathtub, a walk-in shower with both a rain shower and a hand shower, a wall-mounted toilet, and a washbasin with a stylish wooden wall unit. Additionally, a window provides pleasant daylight and natural ventilation.

The first bedroom is surprisingly spacious and bright and, like the rest of the house, features characteristic details such as wooden beams, as well as a high ceiling extending to the ridge of the gable roof. The second bedroom, located at the front, is the master bedroom and is not only very spacious but also practically furnished thanks to the built-in wardrobe.

The generous landing spans the entire floor and even offers space for, for example, a workspace or desk. The third bedroom also features a built-in wardrobe and enjoys pleasant natural light. A neat laminate floor covers the entire floor.

Attic
The attic extends over the full length of the house and forms a surprisingly spacious and practical storage area. The central heating boiler is also located on this floor, allowing it to be functionally concealed.

Garden
The property features a spacious front, side, and back garden. The sunny back garden faces south and offers a pleasant combination of a terrace and a green lawn with a built-in trampoline. Additionally, you will find both a brick and a wooden shed here, ideal for extra storage space.

At the front, the spacious front garden, beautifully landscaped with espaliered lime trees and stylish fencing, ensures a well-maintained and inviting appearance for the home.

Parking
This property offers excellent parking options. There is space on the property itself to park multiple cars. Additionally, ample parking is available in the surrounding area via paid parking. Residents will receive a permit for the no-drive-through zone on Sloterweg.

Leasehold
The property is situated on leasehold land, where the leasehold has currently been paid off up to and including August 31, 2040, and subsequently paid off perpetually, meaning that no ground rent obligation will apply after the expiration of the current period.

Monument

Due to its historical value, the property has been designated as a municipal monument. Additionally, since October 18, 2017, the village has held the status of a municipally protected village landscape, which contributes to the character and unique appearance of the surroundings.

Special features
- Exceptional detached family home in a prime location
- Fully modernized and equipped with all conveniences, while retaining characteristic details
- Sunny south-facing garden
- Parking for multiple cars on private property
- Perpetual leasehold redeemed
- Entrance to the home via both the front and the back
- The house has a smooth plastered finish throughout.
- Energy label B

Surroundings
Living at Sloterweg 1277 means enjoying the best of both worlds: the tranquility and charm of the village-like Oud-Sloten and the proximity to the dynamism of Amsterdam. This characteristic, green, and water-rich environment is known for its historical appearance, featuring, among other things, the authentic village center, cozy streets, and monumental buildings. Oud-Sloten is one of the oldest parts of Amsterdam and exudes a friendly atmosphere, with various local amenities such as a neighborhood supermarket, primary school, and hospitality establishments within easy reach.

In addition, Het Nieuwe Meer is located a short distance away: a popular spot for water sports enthusiasts, walkers, and recreational visitors. Around this expansive lake, you will find various green zones, small beaches, and quiet places to relax by the water. The area forms a beautiful addition to the natural surroundings and offers ample opportunities to enjoy peace and space, while the city always remains close by.

At the same time, accessibility is excellent. By car, you can quickly reach the arterial roads towards the A4, A5, and A9, and public transport also takes you smoothly to the center of Amsterdam, Schiphol, and surrounding cities. This makes the location highly suitable for both families and commuters.

Sale and transfer

Clause
Age clause

Movable property
According to list of items

Completion
By mutual agreement

Purchase Agreement and Notary
An oral agreement between a private seller and a private buyer is not legally valid. In other words: there is no purchase. A legally valid purchase agreement only exists once the private seller and the private buyer have signed the purchase agreement. Within two working days after reaching an oral agreement regarding the purchase price and conditions, the buyer must appoint a notary within a radius of 15 km from the pro