Einsteinlaan 299

Einsteinlaan 299

€ 375 000
Beschikbaar
Einsteinlaan 299
1171 VW BADHOEVEDORP
Nederland
Kamers: 
3
Vloeroppervlakte: 
70 m²
Bouwjaar: 
1960

**This property is sold by a certified MVA expat broker**For English translation see below Dutch text**

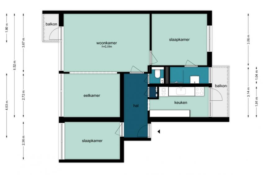
Welkom aan de Einsteinlaan 299 – een modern en volledig gerenoveerd driekamerappartement op de tweede verdieping. Deze woning is in 2022 tot in de puntjes gemoderniseerd en biedt alles wat je zoekt: stijl, comfort en direct woonplezier. De woning beschikt over twee slaapkamers (voorheen drie), een functionele keuken met veel werkruimte, vernieuwde badkamer en één balkon op het zonnige zuidwesten – perfect om te ontspannen in de middag- en avondzon en een tweede balkon aan de achterzijde van de woning.

Indeling
Wat direct opvalt is de ruime en lichte woonkamer.
De vloer is afgewerkt met een brede laminaat plank en alle muren en plafonds zijn strak gestuukt Alles ademt kwaliteit en rust.
De keuken is zeer praktisch ingedeeld: uitgevoerd met hoogglans witte kasten, zwart werkblad en voorzien van diverse inbouwapparatuur, waaronder; vaatwasser, los fornuis met oven en inductie kookplaat en een koelkast. De CV is in de keuken netjes in een kast weggewerkt en het plafond is voorzien van moderne inbouwspots.

De masterbedroom is aan de achterzijde gelegen. Vanuit deze kamer is de nieuwe badkamer toegankelijk met een mooi betegelde inloopdouche met regen en handdouche en een wastafel met meubel en verwarmde spiegel. De tweede slaapkamer is ook ruim van formaat en is aan de voorzijde van het appartement gelegen.

Vanuit de hal zijn alle kamers te bereiken, waaronder ook de moderne toiletruimte met zwevend toilet en fontein. Uitgerust met een moderne en rustige beige tegel.

Op de begane grond is een aparte berging aanwezig, ideaal voor het stallen van fietsen of extra opslag.

Balkons
De woning heeft twee balkons. Aan de voorzijde een balkon gelegen op het zonnige zuidwesten. Aan de achterzijde een balkon gelegen op het noordoosten met een vrij uitzicht.

VvE
Actieve Vereniging van Eigenaren met reservefonds en onderhoudsplan. De servicekosten bedragen € 135,27 per maand.

Parkeren kan voor de deur en is gratis.

Kortom: een instapklare woning met een hoogwaardige afwerking op een centrale en toch rustige locatie in Badhoevedorp. Ideaal voor wie zonder verbouwing wil verhuizen naar een strak afgewerkt, hedendaags appartement.

Omgeving
Badhoevedorp combineert het beste van twee werelden: de gemoedelijkheid van een dorp en de nabijheid van de grote stad. Binnen enkele minuten bereik je Amsterdam, Haarlem of Schiphol. Tegelijkertijd biedt Badhoevedorp een eigen dorpscentrum met winkels, supermarkten, gezellige horeca en diverse sportfaciliteiten. Voor gezinnen zijn er goede basisscholen en speeltuinen in de buurt, en ook het openbaar vervoer en uitvalswegen (A4/A9/A10) zijn snel bereikbaar. Hier woon je rustig en ruim, maar altijd met de stad om de hoek!

Verkoop en overdracht

Clausule
Ouderdomsclausule
Asbestclausule

Roerende zaken
Volgens lijst

Oplevering
In overleg

Koopakte en notaris
Een mondelinge overeenstemming tussen de particuliere verkoper en de particuliere koper is niet rechtsgeldig. Met andere woorden: er is geen koop. Er is pas sprake van een rechtsgeldige koopovereenkomst als de particuliere verkoper en de particuliere koper de koopovereenkomst hebben ondertekend. Koper dient binnen twee werkdagen na het bereiken van de mondelinge overeenstemming in zake de koopsom en de voorwaarden, een notaris aan te wijzen binnen een straal van 15 km van het ter verkoop aangeboden object, opdat uiterlijk 1 week na deze mondelinge overeenstemming de koopakte ondertekend kan worden. Indien koper binnen deze periode geen notaris heeft aangewezen, heeft verkoper het recht deze aan te wijzen.

***************************************************************************************************

Welcome to Einsteinlaan 299 – a modern and fully renovated three-room apartment on the second floor. This apartment was meticulously modernized in 2022 and offers everything you're looking for: style, comfort, and immediate living enjoyment. The apartment features two bedrooms (previously three), a functional kitchen with ample workspace, a renovated bathroom, and a sunny southwest-facing balcony – perfect for relaxing in the afternoon and evening sun – along with a second balcony at the rear of the apartment.

Layout
The spacious and bright living room is immediately noticeable.
The floor is finished with wide laminate planks, and all walls and ceilings are smoothly plastered. Everything exudes quality and tranquility.
The kitchen is very practically laid out: fitted with high-gloss white cabinets, a black countertop, and equipped with various built-in appliances, including a dishwasher, a freestanding stove with oven and induction cooktop, and a refrigerator. The central heating system is neatly concealed in a cupboard, and the ceiling features modern recessed spotlights.

The master bedroom is located at the rear of the apartment. From this room, you can access the new bathroom, which features a beautifully tiled walk-in shower with both rain and hand shower heads, a vanity with a heated mirror, and a sink. The second bedroom is also spacious and is located at the front of the apartment.

All rooms are accessible from the hallway, including the modern toilet with a wall-hung toilet and hand basin. It features modern, subdued beige tiles.

A separate storage room is located on the ground floor, ideal for storing bicycles or providing additional storage.

Balconies
The apartment has two balconies. The front balcony faces the sunny southwest. The rear balcony faces the northeast with unobstructed views.

Homeowners' Association
An active Homeowners' Association with a reserve fund and maintenance plan. The monthly service charge is € 135.27.

Parking is available right outside and is free.

In short: a move-in ready home with high-quality finishes in a central yet quiet location in Badhoevedorp. Ideal for those who want to move into a sleek, contemporary apartment without any renovations.

Surroundings
Badhoevedorp combines the best of both worlds: the friendliness of a village and the proximity of the city. Amsterdam, Haarlem, and Schiphol Airport are just minutes away. At the same time, Badhoevedorp offers its own village center with shops, supermarkets, lively restaurants, and various sports facilities. For families, there are good primary schools and playgrounds nearby, and public transport and major roads (A4, A9, and A10) are also easily accessible. Here you'll live in a quiet and spacious setting, yet always with the city just around the corner!

Sales and Transfer

Clause
Age Clause
Asbestos Clause

Movable Property
According to List

Delivery Date
In consultation

Purchase agreement and notary
A verbal agreement between the private seller and the private buyer is not legally valid. In other words: there is no sale. A legally valid purchase agreement only exists once the private seller and the private buyer have signed the purchase agreement. Within two business days of reaching the verbal agreement on the purchase price and the conditions, the buyer must appoint a notary within a 15 km radius of the property offered for sale, so that the purchase agreement can be signed no later than one week after this verbal agreement. If the buyer has not appointed a notary within this period, the seller has the right to appoint one.