Groenezoom 3

Groenezoom 3

€ 1 195 000
Beschikbaar
Groenezoom 3
1171 JA BADHOEVEDORP
Nederland
Type: 
2-onder-1-kapwoning
Kamers: 
6
Vloeroppervlakte: 
211 m²
Perceeloppervlakte: 
239 m²
Bouwjaar: 
1955

**This property is sold by a certified MVA expat broker**For English translation see below Dutch text**

Aan de rustige Groenezoom in Badhoevedorp staat deze volledig gemoderniseerde twee-onder-een-kapwoning met maar liefst 5 slaapkamers, prachtige nieuwe open keuken, ruime badkamer en een appartement met een eigen keuken en badkamer, alles op het hoogste niveau afgewerkt.
Deze woning combineert stijlvol design, hoogwaardige materialen en een warme, eigentijdse sfeer en is helemaal instap klaar.

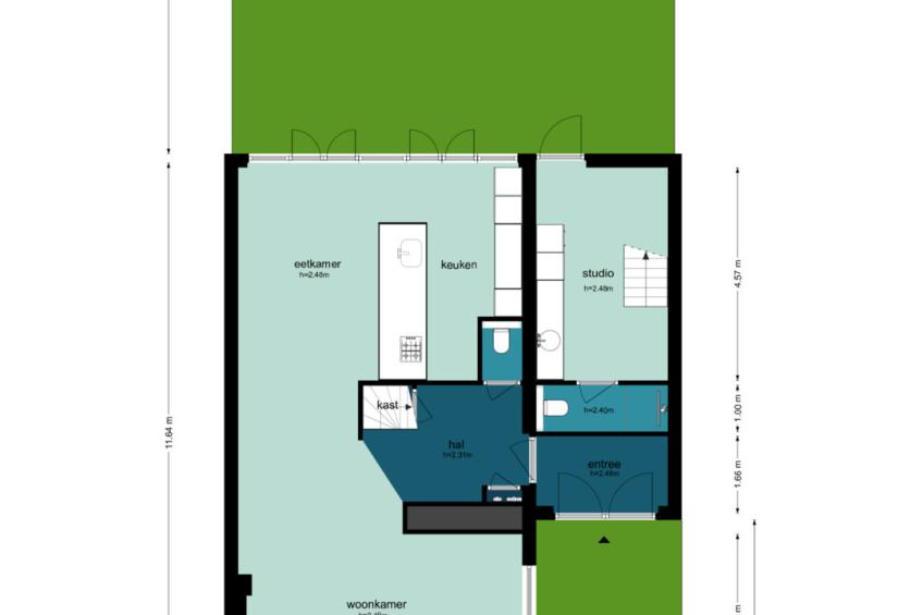
Indeling
Prachtige karakteristieke dubbele voordeur. Bij binnenkomst valt direct de ruime entree op met donkere plavuizen en een elegante stalen taats deur die toegang biedt tot de hal. Hier bevinden zich de vernieuwde meterkast en het luxe toilet in warme marmerlook met zwevend closet – een voorproefje van het afwerkingsniveau in de rest van de woning.

De living is ruim en licht, voorzien van een prachtige visgraat parketvloer. De wanden zijn fraai behangen met hoogwaardige materialen, wat de ruimtes een warme en verfijnde uitstraling geeft. De sfeervolle Cinewall met gashaard, uitgevoerd in grijs eiken met marmer, vormt het stijlvolle hart van de woonkamer.

De op maat gemaakte designkeuken is een absolute blikvanger. Met een afgerond kookeiland van licht Italiaans marmer, zwart gebeitste eiken kasten en een geïntegreerde eettafel is dit de perfecte plek om te koken, borrelen en samen te komen.
De keuken is uitgerust met alle denkbare luxe Miele-inbouwapparatuur, waaronder:

-5-pits gaskookplaat
-Plafond afzuigsysteem
-Koffieautomaat
-Combi-oven
-Wijnklimaatkast
-Vaatwassser
-Koelkast met ijsblokjesmachine
-Vriezer
-Quooker kraan

Daarnaast is er een stijlvolle koffiecorner, waardoor de keuken nog meer karakter en gebruiksgemak biedt. De voormalige garage is bij de woning betrokken, wat zorgt voor extra leefruimte en een open, moderne indeling.

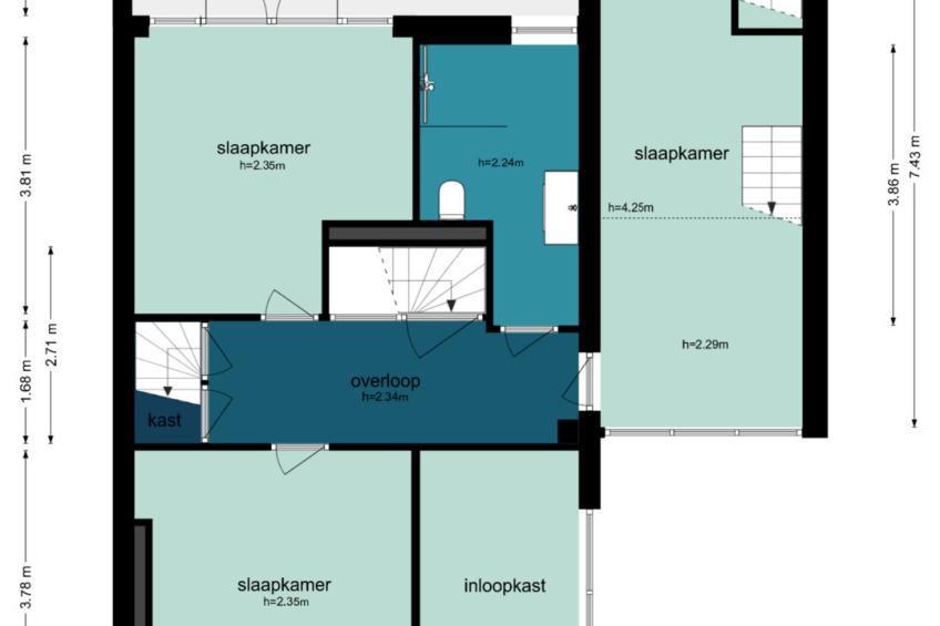
Eerste verdieping
Via de met vloerbedekking beklede trap bereik je de eerste verdieping. Hier word je verwelkomd door een prachtige royale taatsdeur met glazen wand, die zorgt voor een open en moderne uitstraling.
De gehele verdieping is voorzien van een stijlvolle eiken parketvloer in visgraatmotief, stijlvol behangen wanden wat zorgt voor een warme en chique uitstraling die perfect aansluit bij de benedenverdieping.
De ruime overloop biedt toegang tot twee riante slaapkamers, een luxe badkamer en een handige trapkast voor extra bergruimte.

De badkamer is een ware blikvanger: modern, sfeervol en van alle gemakken voorzien. Er is een raam dat zorgt voor natuurlijke lichtinval en ventilatie. De wanden zijn afgewerkt met Beton Ciré in combinatie met taupe- en grijstinten, wat een exclusieve en rustgevende sfeer creëert. Verder beschikt de badkamer over een inloopdouche, zwevend toilet, dubbele wastafel met houten wandmeubel en kolomkast, een spiegelkast met verlichting, inbouwspots en vloerverwarming voor optimaal comfort.

De master bedroom aan de voorzijde is royaal opgezet en uitgerust met airconditioning en een walk-in closet – een ware droom voor wie houdt van ruimte en luxe. De tweede slaapkamer is licht en ruim, met een eigen balkon dat uitkijkt over de zonnige achtertuin.

Tweede verdieping
Via een deur en vaste trap bereik je de tweede verdieping. Ook hier is met zorg en aandacht gewerkt aan ruimte, comfort en afwerking. Deze verdieping beschikt over drie slaapkamers en een praktische wasruimte.
De eerste slaapkamer, gelegen aan de achterzijde, is bijzonder ruim dankzij de grote dakkapellen die zorgen voor veel lichtinval en extra leefruimte. Aan de voorzijde bevindt zich de tweede kamer, momenteel ingericht als kantoor- of hobbyruimte, ideaal voor thuiswerken of creatieve bezigheden. De derde kamer, eveneens aan de achterzijde, leent zich perfect als logeerkamer of extra slaapkamer.
Aansluitend bevindt zich een aparte wasruimte met opstelling voor wasmachine en droger, evenals de nieuwe extra grote Remeha cv-ketel. Deze praktische ruimte voorzien van een grijze plavuizen zorgt ervoor dat alles netjes uit het zicht blijft en toch binnen handbereik is.

Een absolute verrassing is het nieuw gerealiseerde appartement, verdeeld over drie verdiepingen en voorzien van een eigen toegang. Perfect geschikt als gastenverblijf, kantoor aan huis of mantelzorgwoning.

Het appartement beschikt over:
Een moderne keuken met marmerlook blad en diverse inbouwapparatuur als een vaatwasser, magnetron
Een luxe badkamer met regendouche/handdouche
Een woonkamer op de eerste verdieping
Een slaapgedeelte op de vide
De entree van het appartement bevindt zich aan de achterzijde van de woning, bereikbaar via de tuin. Het appartement is tevens verbonden met de hoofdwoning via een binnendeur op de eerste verdieping, maar kan desgewenst volledig worden afgesloten voor optimale privacy.

Tuin
Via de dubbele openslaande deuren in de woonkamer stap je direct de zonnige achtertuin in, gelegen op het zuidoosten. Hier geniet je van rust en privacy, met een strak terras van grijze tegels, een groen gazon en sierlijke beplanting langs de randen. Voor extra comfort is er een elektrisch bedienbaar zonnescherm, zodat je op warme dagen heerlijk beschut kunt zitten.

Omgeving
Gelegen in een rustige, groene en zeer geliefde woonwijk van Badhoevedorp. De straat kenmerkt zich door fraaie twee-onder-een-kapwoningen, volwassen bomen en een prettige, gemoedelijke sfeer. Het is een omgeving waar kinderen veilig kunnen spelen en waar buren elkaar nog kennen.

Op korte afstand vind je diverse winkels, supermarkten, basisscholen, kinderopvang en sportverenigingen – alles wat je nodig hebt voor het dagelijks gemak. Ook het vernieuwde dorpscentrum van Badhoevedorp met gezellige horeca en speciaalzaken ligt op loop- of fietsafstand.

Voor natuurliefhebbers is er volop gelegenheid om te genieten van het buitenleven: de Oeverlanden, het Amsterdamse Bos en het Park de Natureluur liggen allemaal in de nabije omgeving. Daarnaast ben je met de auto binnen enkele minuten op de A4, A9 en A10, waardoor steden als Amsterdam, Amstelveen en Haarlem uitstekend bereikbaar zijn. Schiphol ligt eveneens op korte afstand, zonder dat je geluidsoverlast ervaart.

Bijzonderheden
- De voordeur en het balkon zijn voorzien van elektrisch bedienbare rolluiken
- De woning is voorzien van een alarminstallatie
- In de gehele woning is B&O apparatuur aangebracht
- Pannendak is recentelijk vernieuwd
- In de hele woning zitten mooi afgewerkte zwarte binnendeuren met luxe beslag
- Er is een nieuwe CV ketel
- De naast gelegen garage is te huur voor € 140,-- per maand

Verkoopvoorwaarden

Roerende zaken
Volgens lijst

Oplevering
In overleg

Clausules
- Ouderdomsclausule

Koopakte en notaris
Een mondelinge overeenstemming tussen de particuliere verkoper en de particuliere koper is niet rechtsgeldig. Met andere woorden: er is geen koop. Er is pas sprake van een rechtsgeldige koopovereenkomst als de particuliere verkoper en de particuliere koper de koopovereenkomst hebben ondertekend. Koper dient binnen twee werkdagen na het bereiken van de mondelinge overeenstemming inzake de koopsom en de voorwaarden, een notaris aan te wijzen binnen een straal van 15 km van het ter verkoop aangeboden object, opdat uiterlijk 1 week na deze mondelinge overeenstemming de koopakte ondertekend kan worden. Indien koper binnen deze periode geen notaris heeft aangewezen, heeft verkoper het recht deze aan te wijzen.
***************************************************************************************************
Situated on the quiet Groenezoom in Badhoevedorp, this fully modernized semi-detached house boasts no fewer than five bedrooms, a beautiful new open-plan kitchen, a spacious bathroom, and an apartment with its own kitchen and bathroom, all finished to the highest standard.

This house combines stylish design, high-quality materials, and a warm, contemporary atmosphere and is completely move-in ready.

Layout
Beautiful, characteristic double front doors. Upon entering, you'll immediately notice the spacious entrance hall with dark tiled floors and an elegant steel pivot door leading to the hallway. Here you'll find the renovated meter cupboard and the luxurious toilet with a warm marble look and a wall-hung toilet – a preview of the high-quality finishes throughout the house.

The living room is spacious and bright, featuring beautiful herringbone parquet flooring. The walls are beautifully wallpapered with high-quality materials, giving the rooms a warm and refined feel. The attractive Cinewall with a gas fireplace, finished in gray oak and marble, forms the stylish heart of the living room.

The custom-made designer kitchen is a real eye-catcher. With a rounded kitchen island of light Italian marble, black-stained oak cabinets, and an integrated dining table, this is the perfect place to cook, enjoy drinks, and gather.
The kitchen is equipped with every conceivable luxury Miele appliance, including:

- 5-burner gas cooktop
- Ceiling extractor fan
- Coffee machine
- Combination oven
- Dishwasher
- Refrigerator with ice maker
- Freezer
- Quooker tap

In addition, there is a stylish coffee corner, adding character and convenience to the kitchen. The former garage has been incorporated into the house, providing additional living space and an open, modern layout.

First Floor
The carpeted staircase leads to the first floor. Here, you are greeted by a beautiful, spacious pivot door with a glass wall, creating an open and modern feel. The entire floor features stylish oak parquet flooring in a herringbone pattern, along with stylish wallpapered walls, creating a warm and chic atmosphere that perfectly complements the ground floor.

The spacious landing provides access to two generous bedrooms, a luxurious bathroom, and a convenient under-stairs cupboard for extra storage.

The bathroom is a true eye-catcher: modern, inviting, and fully equipped. A window provides natural light and ventilation. The walls are finished with Beton Ciré in combination with shades of taupe and gray, creating an exclusive and relaxing atmosphere. The bathroom also features a walk-in shower, a wall-hung toilet, a double vanity with a wooden wall unit and tall cabinet, a mirrored cabinet with lighting, recessed spotlights, and underfloor heating for optimal comfort.

The master bedroom at the front is generously sized and equipped with air conditioning and a walk-in closet – a true dream for those who appreciate space and luxury. The second bedroom is bright and spacious, with a private balcony overlooking the sunny backyard.

Second Floor
A door and a staircase lead to the second floor. Here too, space, comfort, and finish have been meticulously designed. This floor features three bedrooms and a practical laundry room.
The first bedroom, located at the rear, is exceptionally spacious thanks to the large dormer windows that provide abundant natural light and additional living space. At the front is the second room, currently used as an office or hobby room, ideal for working from home or creative pursuits. The third room, also at the rear, is perfect as a guest room or extra bedroom.
Adjacent is a separate laundry room with a washer and dryer, as well as the new, extra-large Remeha central heating boiler. This practical space, featuring gray tiles, ensures that everything remains neatly out of sight yet within easy reach.

A real surprise is the newly completed apartment, spread over three floors and with its own entrance. Perfect as a guest house, home office, or care home.

The apartment features:
A modern kitchen with marble-look countertops and various built-in appliances, including a dishwasher and microwave
A luxurious bathroom with a rain shower/hand shower
A living room on the first floor
A sleeping area on the mezzanine
The apartment entrance is located at the rear of the house, accessible via the garden. The apartment is also connected to the main house via an internal door on the first floor, but can be completely closed off for optimal privacy if desired.

Garden
Through the double doors in the living room, you step directly into the sunny southeast-facing back garden. Here you can enjoy peace and privacy, with a sleek terrace of gray tiles, a green lawn, and elegant plantings along the edges. For added comfort, there's an electric awning, so you can sit comfortably sheltered on warm days.

Neighborhood
Located in a quiet, green, and highly sought-after residential area of ??Badhoevedorp. The street is characterized by beautiful semi-detached houses, mature trees, and a pleasant, friendly atmosphere. It's an area where children can play safely and where neighbors still know each other.

A short distance away, you'll find various shops, supermarkets, primary schools, childcare facilities, and sports clubs – everything you need for your daily needs. The renovated village center of Badhoevedorp, with its charming restaurants and specialty stores, is also within walking or cycling distance.

Nature lovers will find plenty of opportunities to enjoy the outdoors: the Oeverlanden, the Amsterdamse Bos, and Park de Natureluur are all nearby. Furthermore, the A4, A9, and A10 motorways are just a few minutes away by car, making cities like Amsterdam, Amstelveen, and Haarlem easily accessible. Schiphol Airport is also a short distance away, without any noise disturbance.

Special Features
- The front door and balcony are equipped with electric shutters
- The house is equipped with an alarm system
- B&O appliances are installed throughout the house
- Beautifully finished black interior doors with luxury hardware are installed throughout the house
- There is a new central heating boiler
- There is garage for rent next to this house, rental price € 140,- monthly

Conditions of Sale

Movable Property
According to the list

Delivery Date
In consultation

Clauses
- Age clause

Deed of Sale and Notary
A verbal agreement between the private seller and the private buyer is not legally valid. In other words: there is no sale. A legally valid purchase agreement only exists once the private seller and the private buyer have signed it. Within two business days of reaching verbal agreement on the purchase price and conditions, the buyer must appoint a notary within a 15 km radius of the property for sale, so that the deed of sale can be signed no later than one week after this verbal agreement. If the buyer has not appointed a notary within this period, the seller has the right to appoint one.